
Kempf-Areal in Goeppingen - A neighborhood with character and openness
The urban development concept strengthens the historical structure of Göppingen's city center and creates an identity-forming, sustainable district. The careful integration of existing buildings and sustainable new development will create a lively, shared urban space.
Project data.jpg)
Urban planning concept
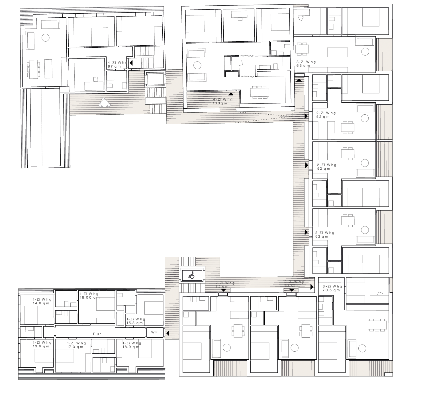
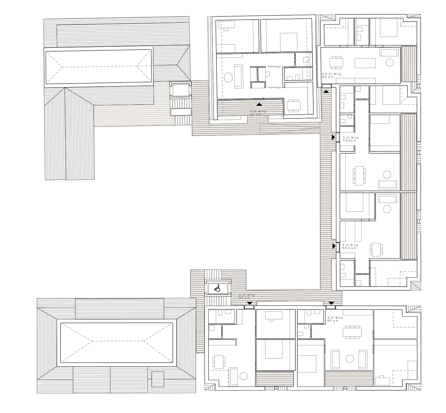
The project strengthens the historic perimeter block structure of Göppingen's city center. The new buildings close the block and form a clearly defined quarter into which the houses in Zone I and Zone III are integrated as identity-forming existing elements. A spacious inner courtyard is created in the center, which is openly connected by three entrances and serves as the communal heart of the quarter. Two new stairwells and two elevators connect the old and new buildings and ensure barrier-free access.
Architectural concept
Towards the street, the new building is divided into gabled houses with pitched roofs that reflect the scale and rhythm of the old town. The segmentation into smaller buildings reflects the plot structure of the neighborhood. On the courtyard side, the pitched roofs transform into a flat roof, creating space for photovoltaic systems and retention areas. This architectural duality enables a sensitive integration to the outside and a contemporary openness to the inside.




Development and delivery
The quarter is accessed both via the surrounding streets and via the inner courtyard. Three passageways connect the courtyard and the edge of the block and also perform functional tasks: Two entrances are combined with bicycle storage rooms, while the entrance on Freihofstrasse is supplemented by a central garbage room. This ensures short distances and a clear organization of secondary functions. Deliveries for restaurants and businesses are made via the public street space, particularly on Freihofstrasse and Kellereistrasse. This enables a functional connection to the district without burdening the inner courtyard with traffic.




Open space and courtyard design
The inner courtyard is designed as the green center of the neighborhood. Lounge areas, planting and play areas encourage people to meet and create a high quality of stay. The courtyard is semi-public and connects the surrounding development zones with a communal living space. Functional ancillary spaces are integrated into the courtyard zone: bicycle storage rooms are created at two of the three entrances to actively promote cycling in the neighborhood. The third entrance is accompanied by a central garbage room that bundles waste disposal for the entire neighborhood. This gives each entrance a clear function that increases the everyday suitability and usability of the courtyard.
Construction and materials
The street façades are classically plastered, differentiated by various types of plaster such as broom finish plaster and subtle shades of color. They pick up on the Göppingen color and design tradition and blend calmly into the cityscape. The courtyard sides are clad with light, vertically structured wooden slats, which create a warm and homely atmosphere. Weather-protected pergolas structure the courtyard sides and strengthen neighborly interaction. The design is conceived as a timber hybrid building. This construction method enables a high degree of prefabrication, short construction times and cost-effective implementation. It also contributes to ecological sustainability, CO₂ reduction and resource-conserving construction.

Always design your building so that it is timeless and at the same time part of its history.
{{quote="/team/christian-gaus"}}

Apartment typologies and organization
The new development and the building in Zone III will create a total of 26 apartments that meet the required housing mix:
- 11 x two-room apartments 40 %
- 11 x three-room apartments 40 %
- 4 x four-room apartments 20 %
The apartments are organized in such a way that cross-ventilation and through-living are possible. Kitchens and wet rooms are located on the courtyard side of the arcades and act as a functional buffer zone between private living and semi-public access. The arcades create a communicative level to the courtyard, while at the same time reducing the. at the same time as reducing the circulation areas and enabling compact structures with a high level of efficiency. The building in Zone I will also have 12 guest rooms, which will complement the residential offering and contribute to the revitalization of the quarter. These are also connected to the new access system and can be reached barrier-free.



Sustainability and energy
The flat roofs on the courtyard side are intended for photovoltaic systems and green roofs. Greened retention areas contribute to rainwater retention and the microclimate. In addition, the proportion of unsealed surfaces is maximized: Courtyard and access areas are equipped with water-permeable surfaces so that rainwater can seep away and be returned to the natural cycle. The choice of residential typologies also supports the sustainable overall concept. The deliberately shallower building depths create the largest possible inner courtyard, which not only offers a high quality of stay, but also contributes to the ventilation and shading of the district. The compact perimeter block structure reduces energy losses, while the good cross-ventilation of the apartments ensures resilience against overheating in summer.
Economy and design
The combination of maintaining suitable existing buildings and modular new buildings reduces construction costs and saves gray energy. The clearly structured development and recurring typologies facilitate economical implementation and flexible further development.

Fire protection and development
The fire protection concept is based on clearly structured access cores and short escape routes. Fire walls divide the building volumes, while the courtyard and street fronts can be used equally as escape routes. Barrier-free access ensures that all residential units can be used.















