
Fire station in Mögglingen. Identification at the new location.
In a feasibility study, the optimal location for a new building was found. Now the village's volunteer fire department has a modern functional building that meets current requirements.
Project dataThe implementation phase is running smoothly, the tender results were excellent and the construction process was completely uncritical... one can only say: this is exactly how it should continue!
<div class="author_component">
<div class="author_text-wrapper">
<div class="author_name">Adrian Schlenker</div>
<div class="author_position">Bürgermeister der Gemeinde Mögglingen
</div>
</div>
</div>

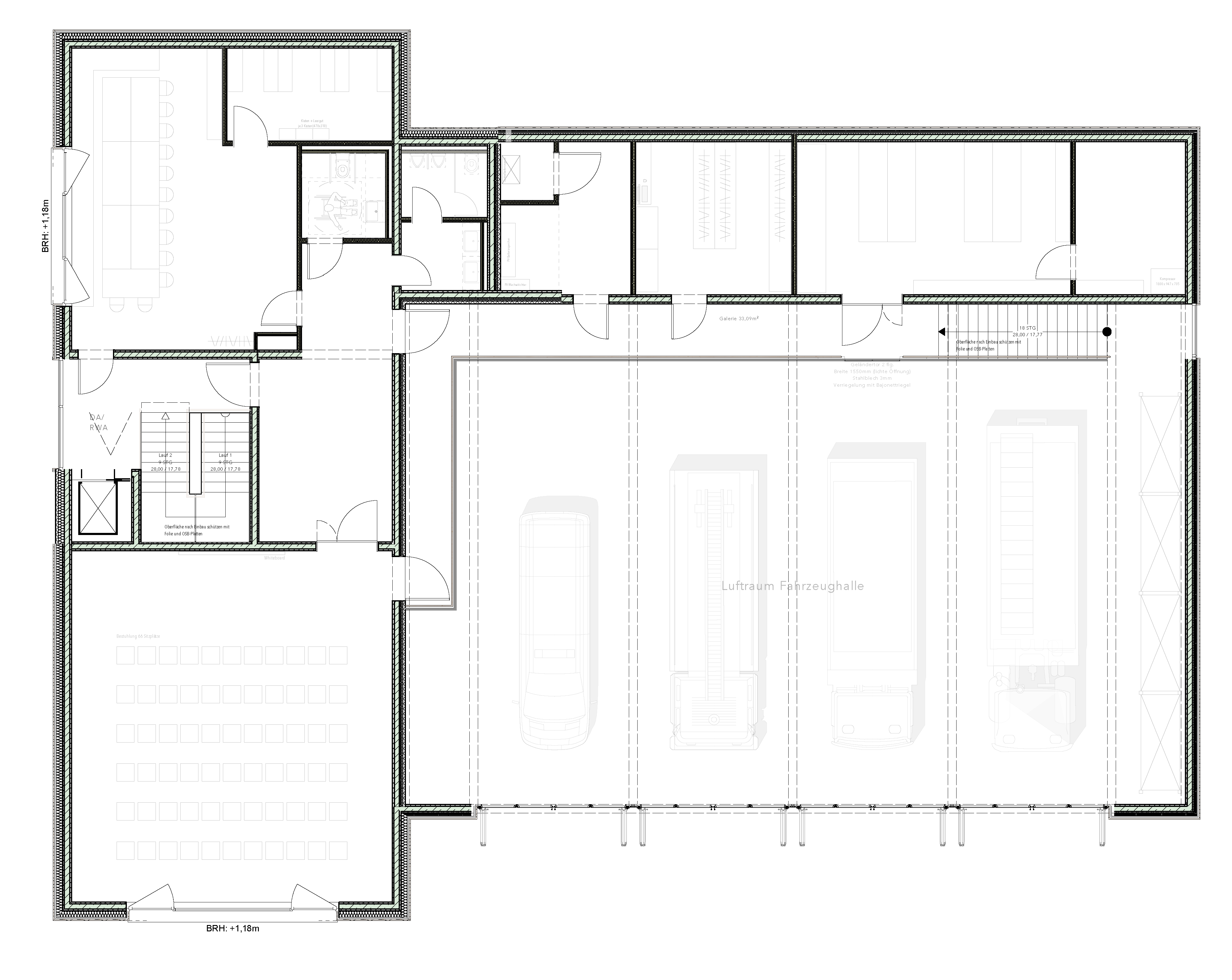
The new building, which has one or two storeys, is divided into three sections. The administrative area is located in the left wing of the building. The first floor houses the radio room, a meeting room with radio technology, changing rooms and a commander's office. The upper floor offers space for a training room, WC rooms and a recreation room with kitchen.
The right-hand wing of the building houses the spacious vehicle hall with four parking spaces, a high-bay rack and storage and workshop areas. These utility rooms extend over two storeys.


Now the village's volunteer fire department has a modern functional building that meets current requirements.
<div class="author_component">
<div class="author_text-wrapper">
<div class="author_name">Christian Gaus</div>
<div class="author_position">Freier Architekt | Geschäftsführender Inhaber
</div>
</div>
</div>

A training tower is no longer included in the new plans. Instead, the fire department will erect an existing scaffolding tower next to the training yard.


Parking spaces are provided outside for the cars of the emergency services. There are also parking spaces for bicycles and motorized two-wheelers. There are parking spaces for emergency vehicles in front of the vehicle hall, which also serve as a training area. The entrance and exit function smoothly in the event of an emergency.
To the press room with texts, royalty-free visualizations and plans







